Stetson
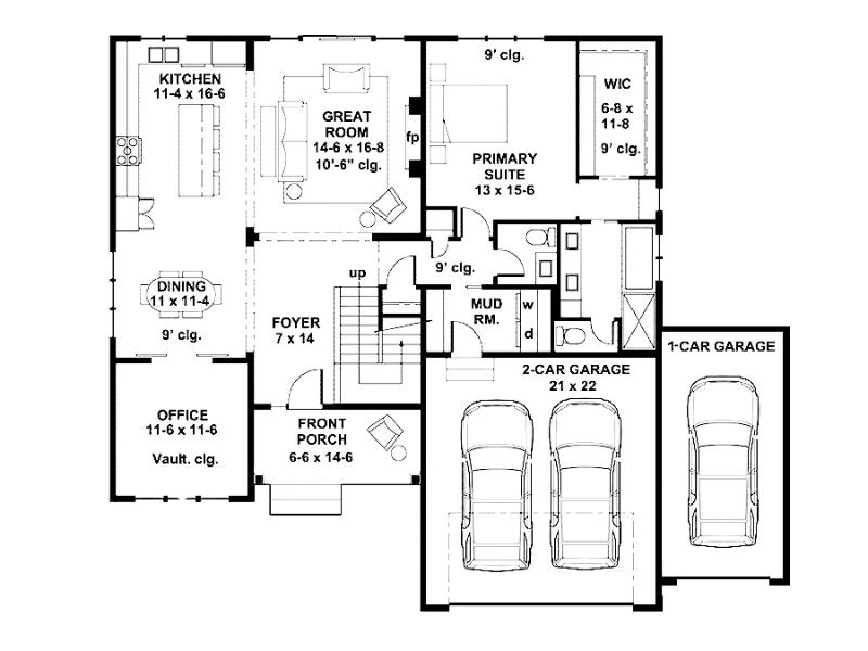
The Stetson is designed to feel open, welcoming, and easy to live in from the moment you step inside. The main living area brings the kitchen, dining, and great room together in a way that feels connected without losing definition, creating a natural space for both everyday living and gathering. The primary suite is
A dedicated office on the main level offers flexibility for work or quiet focus, while the primary suite provides a private retreat set apart from the rest of the home. Thoughtful details like the mudroom and laundry on the main level help keep daily routines organized and efficient.
Upstairs, a central loft adds additional living space surrounded by secondary bedrooms, offering flexibility as needs change over time.
With over 2,500 square feet and a well balanced layout, the Stetson offers a comfortable blend of openness, privacy, and flexibility designed for the way you live.
Build in Our Communities
Build on Your Land in These Counties
Prices, plans, dimensions, features, specifications, materials, and availability of homes are subject to change without notice or obligation. Illustrations and images are examples only and may differ from your personal selections.
Available Homes
floor plans
Included Features
Interior Details
- Programmable thermostat
- Brushed nickel designer light fixtures
- 3-panel interior hollow core doors with brushed nickel knobs
- Durable, easy maintenance luxury vinyl tile
- 30 oz carpet with 6 lb pad in bedrooms, living, and halls
- Holy Smooth hand-applied texture on walls throughout
- Brush Stamped hand applied texture on ceilings throughout
- Painted handrails with drywall half-wall at stairs
- Painted wood shelving in all closets
- 8’ ceilings
- 4” painted MDF rectangle baseboards and 3¼” rectangle casings
- Drywall wrapped windows
- Sherwin Williams single-tone egg-shell finish acrylic paint
Bedrooms and Baths
- Brushed nickel vanity lighting in bathrooms
- Moen chrome faucets and shower heads
- White fiberglass tub/shower combo in hall bath
- White fiberglass shower in the owner's suite
- White porcelain under mount vanity sinks
- 2 cm granite stock colors
- Elongated toilets
- Mirrors over all bathroom vanities
- One outlet per sink
- Painted HDF cabinetry with a choice of door profiles
- Towel bars, hooks, and toilet paper holders
- Spacious walk-in closet in primary bedroom*
Mechanical and Electrical
- 125 AMP electrical service for one level homes, 200 AMP for multi-level
- Washer and electric dryer hookup
- 95% efficiency furnace
- Central A/C
- 50-gallon electric water heater
- Data Box and conduit for future hookups
- Hard-wired smoke detectors with battery backup
- Carbon monoxide detector, one per floor
- Roughed-in plumbing drain for bathroom in unfinished basement
- LED disc lights in the kitchen, hallways, bedrooms
- General purpose outlets placed every 12’ of wall and 2’ of counter space
- Switches are installed at 48” and outlets at 16”
- White switch, receptacle, and cover plates
- Passive radon mitigation
- Prewired for doorbell
- Prewired for fans in living room and all bedrooms
Kitchen
- Stainless steel GE gas range, microwave, and dishwasher
- 2 cm granite stock colors
- Painted HDF cabinetry with a choice of door profiles
- Moen chrome pullout faucet with sprayer
- Plumbed water line to fridge
- Undermount stainless kitchen sink with 2 equal bowls
- 1/3 hp sink disposal
- Prewired for island outlet
Exterior Details
- Dual-layered fire and wind-rated asphalt roof shingles
- Maintenance-free vinyl siding
- Vented aluminum soffit and fascia
- Painted moisture and rot resistant engineered wood accents
- 2 hose bibs, one in front and one in back
- White dual paned Low-E vinyl-clad windows with screens
- Sliding/single swinging patio door with internal blinds
- Insulated dent-free fiberglass entry door with keyed entry and deadbolt
- 2x6 exterior house walls with R-21 fiberglass batt insulation
- Flat ceilings R-49 blown-in insulation
- 2 weatherproof exterior outlets, one by each exterior door
- Unfinished attached garage, drywall hung and taped on wall/ceiling separating living space in house
- Steel, raised panel, non-insulated garage door with wireless keypad and remote
- One electrical outlet per stall in the garage
- Coach lights on the garage and matching light by the back door
- Front and back porch LED disc lights*
- Seamless aluminum gutters and downspouts over exterior concrete
*These features will vary depending on the plan you choose
Please note: our standard included features are subject to change, but you can rest assured that we will always deliver a quality home you can trust.
For your information, this list was updated in October of 2025.
