Talbot
The Talbot offers the convenience of single-level living with a spacious open-concept design to optimize the use of its square footage. The primary suite features a generous walk-in closet and a private bathroom. Near the entry and off the garage, you'll find a practical storage/coat closet. With two bedrooms, two bathrooms, a back patio, and thoughtfully placed storage, this home is designed for your comfort.
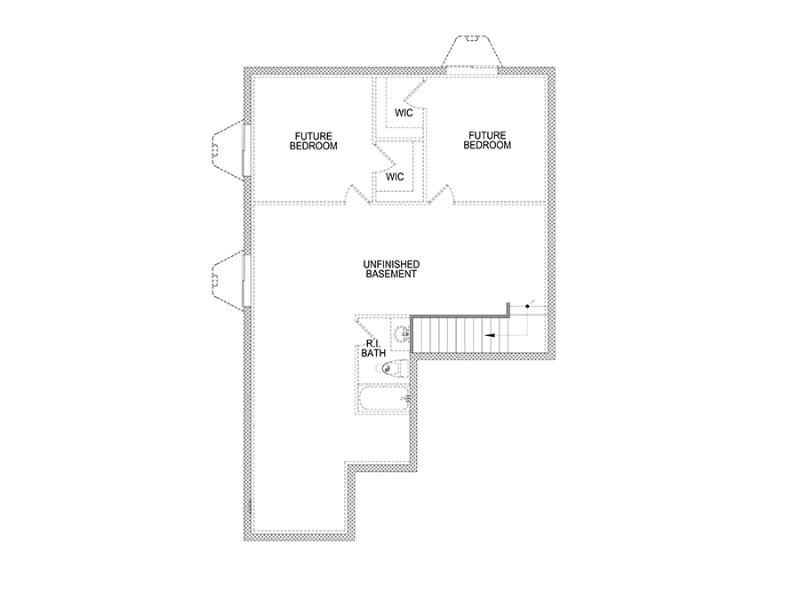
Optional upgrades like a basement or a second story could provide flexible spaces for work, recreation, storage, or extra living areas.
Highlights:
- Large windows in dining/living rooms
- Expansive walk-in closet and private bath in primary suite
- Convenient central laundry room
- Coat closet near entry
- Covered front porch
- Single-level convenience
- Optional basement with potential for 2 more bedrooms and 1 more bathroom
- Optional second story with potential for 1 more bedroom, 1 more bathroom, and loft
We are happy to inform you that each brand-new Smart Dwellings home is covered by a 10-Year Limited Warranty which offers wall-to-wall coverage for the first year of ownership and additional coverage for up to ten years. Please see our warranty page for more information.
We can build this floor plan for you on your land in Southwest Wyoming. Take advantage of our free site assessment and get started today!
Build on Your Land in These Other Counties
Prices, plans, dimensions, features, specifications, materials, and availability of homes are subject to change without notice or obligation. Illustrations and images are examples only and may differ from your personal selections.
floor plans
Included Features
Interior Details
- Programmable thermostat
- Brushed nickel designer light fixtures
- 3-panel interior hollow core doors with brushed nickel knobs
- Durable, easy maintenance luxury vinyl tile
- 30 oz carpet with 6 lb pad in bedrooms, living, and halls
- Holy Smooth hand-applied texture on walls throughout
- Brush Stamped hand applied texture on ceilings throughout
- Painted handrails with drywall half-wall at stairs
- Painted wood shelving in all closets
- 8’ ceilings
- 4” painted MDF rectangle baseboards and 3¼” rectangle casings
- Drywall wrapped windows
- Sherwin Williams single-tone egg-shell finish acrylic paint
Bedrooms and Baths
- Brushed nickel vanity lighting in bathrooms
- Moen chrome faucets and shower heads White fiberglass tub/shower combo in hall bath
- White fiberglass shower in the primary suite
- White porcelain under mount vanity sinks
- 2 cm granite stock colors
- Elongated toilets
- Mirrors over all bathroom vanities
- One outlet per sink
- Painted HDF cabinetry with a choice of door profiles
- Towel bars, hooks, and toilet paper holders
- Spacious walk-in closet in primary bedroom*
Mechanical and Electrical
- 125 AMP electrical service for one level homes, 200 AMP for multi-level
- Washer and electric dryer hookup
- 95% efficiency furnace
- Central A/C
- 50-gallon electric water heater
- Data Box and conduit for future hookups
- Hard-wired smoke detectors with battery backup
- Carbon monoxide detector, one per floor
- Roughed-in plumbing drain for bathroom in unfinished basement
- LED disc lights in the kitchen, hallways, bedrooms
- General purpose outlets placed every 12’ of wall and 2’ of counter space
- Switches are installed at 48” and outlets at 16”
- White switch, receptacle, and cover plates
- Passive radon mitigation
- Prewired for doorbell
- Prewired for fans in living room and all bedrooms
Kitchen
- Stainless steel GE gas range, microwave, and dishwasher
- 2 cm granite stock colors
- Painted HDF cabinetry with a choice of door profiles
- Moen chrome pullout faucet with sprayer
- Plumbed water line to fridge
- Undermount stainless kitchen sink with 2 equal bowls
- 1/3 hp sink disposal
- Prewired for island outlet
Exterior Details
- Dual-layered fire and wind-rated asphalt roof shingles
- Maintenance-free vinyl siding
- Vented aluminum soffit and fascia
- Painted moisture and rot resistant engineered wood accents
- 2 hose bibs, one in front and one in back
- White dual paned Low-E vinyl-clad windows with screens
- Sliding/single swinging patio door with internal blinds
- Insulated dent-free fiberglass entry door with keyed entry and deadbolt
- 2x6 exterior house walls with R-21 fiberglass batt insulation
- Flat ceilings R-49 blown-in insulation
- 2 weatherproof exterior outlets, one by each exterior door
- Unfinished attached garage, drywall hung and taped on wall/ceiling separating living space in house
- Steel, raised panel, non-insulated garage door with wireless keypad and remote
- One electrical outlet per stall in the garage
- Coach lights on the garage and matching light by the back door
- Front and back porch LED disc lights*
- Seamless aluminum gutters and downspouts over exterior concrete
*These features will vary depending on the plan you choose
Please note: Our standard included features are subject to change, but you can rest assured that we will always deliver a quality home you can trust. For your information, this list was updated in October 2025.
